
一场出人意料的“隆冬”打乱了每个人的日子。可是也衍生出了许多对买房置业的新考虑、新认知。足不出户的日子让人惊觉,房子不只仅仅仅房子,更多的成为了哪怕被阻隔仍然能感遭到温暖的当地。观承望溪的产品价值百科观在此刻得以凸显和印证。
这场战争来袭,为了安全起见,下降被感染的风险,很多人不得不宅家闭门,在家自我阻隔。
长期呆在家中,与家人共处,让许多躲藏的寓居不方便和环境安全卫生问题都凸显了出来,咱们关于抱负住所的要求也随之发生了改变:
非常时期的寓居新考虑,让渐渐的变多的人认识到了一套好房子的重要性!
01修建密度要低,美化率要高。修建密度低且楼间距大,楼与楼之间不档光,确保每户的阳光足够,室内空气流通。一同,更多的美化面积关于美化环境和改进空气质量有很大的协助。
02规划社区将得到更多喜爱。低密度的人口寓居环境能大幅度的下降被感染病毒的机率,在办理外来人员收支方面也更简单。
03离尘不离城。既能享用邻近的生态资源,又能享遭到城市的日子配套便当,真实的”出则富贵,入则安静“。
04户型挑选既要有独立空间更要有公共空间。要确保每位家庭成员有归于自己的空间,互不搅扰,也要有可以一同互动的公共区域,包容一家人的娱乐活动。
针对以上4点,咱们从头审视观承望望溪,看它如安在特别时期以逆行的硬核产品力,紧循时下健康安全的寓居理念?
壹
千亩别墅区的低密洋房
同墅质的舒适寓居产品
观承望溪作为观承大墅区的四期项目,是万科在观承别墅区的收官洋房著作,也是万科落子中心别墅区的重要人文宜居大盘。虽为洋房产品,天然而然的依照墅区质量来进行打造。
由于土地规划的约束,观承望溪规划为洋房+叠拼产品形状,但建造在观承墅区,质量天然堪比别墅。因而,观承望溪决议打造同墅质产品6-8层低密墅质洋房。这样的产品形状,既确保了业主在具有墅区的寓居环境的一同也具有低密住区。1梯2户,低密度社区户数人员少,防止非常时期的密布触摸,能有用削减穿插感染。
在修建规划上同质类比别墅运用了中轴型规划,格式方正,每一寸空间都极尽天然,将人文传承与山水风景天然地融入修建规划中。
贰
极致健康的空间规划
给三代家庭幸福日子
观承望溪的规划师从寓居者视点给“好产品“赋予了本身的了解, “好房子应该是高舒适度、高运用率、超高的性价比”。
在户型规划上,细节规划可谓讲究。如“最小10㎡准则”,即每个空间不少于10㎡。跟着改进型客户家庭人口的添加,在户型上应尽或许挑选空间利用率大的寓居空间。在这点上,卧室“最小10㎡准则”既在空间上确保了舒适度,又防止了由于第三、第四卧室太小而发生的逼仄、压抑,乃至后续无法按期运用的困扰。
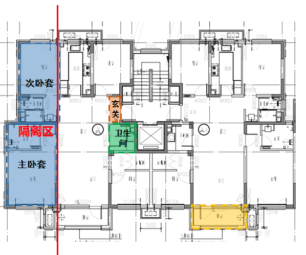
足不出户的日子让人惊觉:温暖的阳光之于一个家庭的重要性。南侧大约5.8米的超大阳台,足不出户即可享用阳光。一同,阳台的空间也可放置健身设备,随时随地呼吸新鲜空气和一同,还能训练身体。约4㎡家政间,可改造为第三个卫生间,别的的卫生间和次卧可在改为次卧套,由此可成为两个独立的阻隔区,又不影响其他家人运用。独立玄关的规划,特别时期可将独立玄作为暂时入户后的消毒专区,防止将外界的病毒带入户内,给家人多一处安全看护。
观承望溪户型图功用示意图
在特别时期需求常常开窗通风以确保室内空气质量,观承望溪南北通透及南侧大窗规划,敞开双扇就能确保满意的通风换气量。厨房和卫生间也都是全明规划,能起到通风换气的效果,可以有用防止细菌繁殖。另建立分户式VRV空谐和新风体系,同步辅佐室内换气,防止整楼穿插感染。南侧仓储设有大窗井,也能满意足够的通风和采光。
观承望溪全明四居室的规划不只处理了采光问题,同步也处理了三代家庭的日子空间功用布局,将居家作业、日子分隔,互不搅扰。
极致的空间准则,将健康日子理念置于规划,是观承望溪硬核产品力赋予安全健康的空间规律。
观承望溪户型图
叁
墅级物业服务标准
给特别时期的安心
观承望溪的物业为挑选十年业主满意度在90%以上的龙湖物业。运用龙湖2578项细节标准,为社区业主供给愈加人性化与精细化服务。
非常时期之下,不容放过每一个有风险的细节。墅区物业对收支社区的人员进行办理、体温检测,每日对公共区域的进行守时定点的消毒查看,园区大堂及地库都配有消毒地毯,以便对鞋底及车轮及时消毒,不放过每一个或许带来风险的细节,一心一意为业主做好消杀防护作业,以墅级物业的高端服务质量发明安全安心的日子港湾,让更多人感触服务之夸姣。观承望溪带着对细节极致要求打造安心安全的居所,特别显现在不被留意的旮旯比如户内地漏设有存水弯或结构水封,满意50mm水封高度的标准要求;对首层卫生间做排水单独出户规划,防止首层呈现污水返溢的状况;以及排水道设有防火止回阀,有用防止排气道内气体进入室内空间。而这些臻于细节对设备提高的规划,都可以有用防止穿插感染。
肆
不止于城市山林之境
更着力于健康的呼吸
关于更大都的人来说,所熟知的观承望溪,在园林营建上,由“园林专家”龙湖打造,发掘脚下每一寸土地的故事,依循着“城市山林”的风光,以一园八景为主结构,发挥最大的景象空间优势。
但除此之外,园林景象的规划更表现了人与天然相融的环境要义。“一园八景”不只供业主赏识美景,更重要的是供给充分的鲜氧,并且在景象区配有全龄段的活动场所,确保不出门在家就能赏识美景、也能训练身心。
观承望溪匠心研发好产品、好物业、好配套,给你一个健康安全的家。不止于眼前的舒适,更能包容日子的百变场景,敞开未来日子幻想。
